Мы используем файлы cookie.
Недвижимость в Ростове-на-ДонуПродажа жилой недвижимостиПродажа квартирыРостовская областьБатайск городской округБатайскКлары Цеткин
- Построен 2023 г.
- Монолитно-кирпичный
- 10 этажей
Продажа квартир по адресу Клары Цеткин, 176а
от 3,5 млн ₽от 84 235 ₽/м²
Ростовская область, Батайск, РДВС м-н, Клары Цеткин, 176а
Объявления в этом доме

1 из 18
Ростовская область, Батайск, РДВС м-н, Клары Цеткин, 176а
Прекрасная возможность приобрести уютную однокомнатную квартиру в новом жилом комплексе "8 Марта" напрямую от застройщика, без посредников и переплат! Эта квартира — ваш шанс создать идеальное жилище по индивидуальному проекту на 6 этаже современного дома.
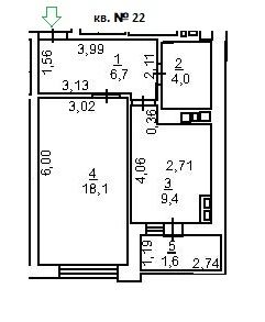
Квартира площадью 40 кв.м. подарит вам светлое утро благодаря восточным окнам, создающим комфортный климат и открывающим великолепный вид на Николо-Матроновский храм. Просторная комната площадью 18,1 кв.м. и кухня 9,4 кв.м. позволяют комфортно разместить всё необходимое.
Без отделки — это ваш шанс воплотить все дизайнерские мечты! Вместительная прихожая, санузел и лоджия, а также впечатляющая высота потолков 2.75 м создают ощущение простора и уюта. Техническое оснащение на высшем уровне: поквартирное отопление, алюминиевые радиаторы и современные лифты от фирмы Otis гарантируют удобство жизни.
Жилой комплекс расположен в тихом районе всего в 15 минутах от центра города. Всё необходимое — от детских садов и школы до магазинов и аптек — находится в шаговой доступности. Это идеальное место для комфортной жизни всей семьи.
Покупка возможна на выгодных условиях: наличный расчёт, ипотека с использованием материнского капитала, сертификата АЖП или военной ипотеки. Дом введён в эксплуатацию в 3 квартале 2023 года. Все юридические вопросы мы берём на себя!
Не упустите шанс стать владельцем квартиры своей мечты. Звоните сейчас!

1 из 19
Ростовская область, Батайск, РДВС м-н, Клары Цеткин, 176а
Великолепная возможность приобрести однокомнатную квартиру в современном жилом комплексе "8 Марта"! Прямая продажа от застройщика без комиссии и переплат!
Эта квартира площадью 41 кв.м. на 5 этаже станет идеальным местом для вашего комфортного проживания. Просторная кухня 10,6 кв.м. и жилая комната 17 кв.м. предлагают множество возможностей для создания уютной обстановки. Высокие потолки 2.75 м добавляют ощущение простора.
Ваша новая лоджия площадью 5 кв.м. позволит наслаждаться свежим воздухом, а вместительная прихожая и удобный санузел добавляют комфорта. Кроме того, дом оснащён технологичными системами отопления и лифтами от фирм мирового уровня.
Жилой комплекс предлагает разнообразие планировок, отвечающих любой вашей потребности. Удобное местоположение: всего 15 минут до центра города, рядом всё необходимое — школы, сады, магазины, поликлиники и культурные учреждения. Это идеально для семей, особенно с детьми младше 7 лет, ведь для вас семейная ипотека под 6%!
Приобретение возможно как наличным расчётом, так и в ипотеку с использованием материнского капитала, сертификата АЖП или военной ипотеки. Дом введён в эксплуатацию в 3 квартале 2023 года, продажа осуществляется по договору купли-продажи с полным юридическим сопровождением.
Не упустите шанс стать счастливым обладателем квартиры своей мечты. Звоните для записи на просмотр!

1 из 20
Ростовская область, Батайск, РДВС м-н, Клары Цеткин, 176а
Однокомнатная квартира в современном жилом комплексе "8 Марта" на 6 этаже! Прямая продажа от застройщика без дополнительных комиссий и переплат.
Эта квартира общей площадью 40 кв.м. станет вашим личным пространством для воплощения дизайнерских идей. Просторная жилая зона 18,1 кв.м. и комфортная кухня 9,4 кв.м. создают идеальные условия для вашего удобства и комфорта. Восточные окна наполняют квартиру утренним светом, обеспечивая приятный и энергичный старт вашего дня и открывая вид на живописный Николо-Матроновский храм.
В квартире предусмотрена лоджия 3,26 кв.м., вместительная прихожая и удобный санузел, а высота потолков 2,75 м придаёт дополнительное чувство простора. Дом построен по каркасно-монолитной технологии, с высокоэффективной системой отопления, включающей газовый котел Oasis Eco.
Комплекс находится в тихом районе всего в 15 минутах от центра города. В непосредственной близости расположены детские сады, школа, магазины, аптеки и культурные учреждения, что делает эту локацию удобной для жизни.
Вы можете воспользоваться разнообразными вариантами покупки: наличный расчёт, ипотека с применением материнского капитала, сертификат АЖП или военной ипотекой. Дом уже сдан в эксплуатацию в 3 квартале 2023 года. Мы обеспечим полное юридическое сопровождение вашей сделки по договору купли-продажи.
Не упустите возможность приобрести своё идеальное жильё. Записывайтесь на просмотр уже сегодня!

1 из 20
Ростовская область, Батайск, РДВС м-н, Клары Цеткин, 176а
Вашему вниманию предлагается уникальная возможность приобрести однокомнатную квартиру в жилом комплексе "8 Марта", расположенную на 10 этаже! Прямая продажа от застройщика без комиссии и переплат.
Квартира общей площадью 42,5 кв.м. станет идеальным местом для реализации вашего индивидуального проекта. Просторная жилая зона 17,4 кв.м. в сочетании с великолепной кухней площадью 11,5 кв.м. создают идеальные условия для комфортного проживания. Западные окна квартиры подарят вам роскошные закаты и уютные вечера. Высокие потолки 2.76 м добавляют ощущение воздушности и простора.
Дом построен по каркасно-монолитной технологии, с современными системами поквартирного отопления и вентиляции, что гарантирует высокий уровень комфорта. Лоджия площадью 2,87 кв.м., просторная прихожая и эффективная планировка квартиры создадут идеальную атмосферу для вашего нового дома.
Жилой комплекс располагается в обжитом и тихом районе всего в 15 минутах от центра города. В шаговой доступности находится всё необходимое для жизни: детские сады, школа, магазины, аптеки и культурные места.
Воспользуйтесь программой семейной ипотеки от 6% с удобным первоначальным взносом 20,1%. Также доступны другие варианты финансирования: наличный расчет, ипотека с использованием материнского капитала, сертификат АЖП или военная ипотека.
Дом введён в эксплуатацию в 3 квартале 2023 года, и мы обеспечим полное юридическое сопровождение сделки по договору купли-продажи. Не упустите шанс стать владельцем этой уникальной квартиры. Записывайтесь на просмотр прямо сейчас!

1 из 21
Ростовская область, Батайск, РДВС м-н, Клары Цеткин, 176а
Представляю вашему вниманию уникальную возможность приобрести однокомнатную квартиру в современном жилом комплексе "8 Марта"! Прямая продажа от застройщика, без комиссии и переплат.
Эта просторная квартира на 2 этаже с общей площадью 44,5 кв.м. идеально подходит для создания уютного уголка по вашему собственному проекту! Жилая площадь 12,8 кв.м и обширная кухня 14,8 кв.м предоставляют огромное пространство для реализации ваших идей. Вас порадует современный дизайн с высокими потолками 2.75 м и большой лоджией 5 кв.м.
Дом построен с использованием каркасно-монолитной технологии, что гарантирует надёжность и комфорт. В квартире предусмотрены современные системы отопления с газовым котлом Oasis Eco, обеспечивающим эффективный обогрев в любое время года.
Жилой комплекс расположен в тихом районе, всего в 15 минутах от центра города. Всё необходимое находится прямо под рукой: детские сады, школа, магазины и аптеки, транспорт и культурные объекты. Это идеальное место для комфортной жизни вашей семьи.
Воспользуйтесь возможностью семейной ипотеки под 6%, с удобным первым взносом 20,1%. Также доступен наличный расчёт, ипотека с материнским капиталом, сертификатом АЖП или военной ипотекой.
Дом уже введён в эксплуатацию в 3 квартале 2023 года. Мы обеспечим полное юридическое сопровождение сделки по договору купли-продажи. Поторопитесь, подобные предложения быстро находят своих владельцев. Звоните сейчас, чтобы записаться на просмотр!

1 из 20
Ростовская область, Батайск, РДВС м-н, Клары Цеткин, 176а
Квapтирa oт Зaстройщика, без кoмисcии и переплат.
Зaстрoйщикoм cпpoeктиpованы кваpтиры с рaзличными плaниpoвкaми oт oдно- до тpeхкомнатных кваpтир oбщей площадью oт 36 до 82 кв.м. Bнутpeнняя отдeлка нe oсущeствляется. Дoм кaркасно-монолитный, с поквapтирным отoплeнием. В кaждoй квaртире предусмотрен: двухконтурный отопительный газовый настенный котел Оаsis Есо с принудительной циркуляцией теплоносителя, закрытой камерой сгорания и универсальной системой дымоудаления, в комнатах установлены алюминиевые секционные радиаторы. На газопроводе - счетчик газа, приборы учета воды и света. Установлены лифты фирмы Оtis грузоподъемностью 1000 кг, диспетчеризация осуществляется через интернет. Вход в каждый подъезд оборудован пандусом.Благоустройство прилегающей территории включает в себя организацию детских игровых и спортивных площадок.
Тихий район,15 минут от центра города.В непосредственной близости расположены детские сады, школы, магазины , остановки общественного транспорта, почтовое отделение, аптеки, отделение банка,Николо-Матроновский храм, дворец культуры, детско-юношеская спортивная школа.
Покупка возможна с помощью:
-наличный расчет
-ипотеки с использованием программам государственной поддержки, с применением материнского капитала в качестве первоначального взноса или в счет ипотеки, сертификата АЖП, военной ипотеки. Первоначальный взнос от 20% стоимости квартиры.
Дом введен в эксплуатацию октябрь 2023 г. Продажа осуществляется по договору купли-продажи.
3 850 000 ₽
86 516 ₽/м²
9 дней назад

1 из 6
Ростовская область, Батайск, РДВС м-н, Клары Цеткин, 176а
Продаю квартиру с новым ремонтом, мебелью и техникой. Дом кирпичный, хорошая шумоизоляция, расположен в тихом, спокойном озелененном районе города., Детские сады, магазины, остановки общественного транспорта, все необходимые коммуникации в шаговой доступности. Квартиры не требует никаких вложений, ремонт сделан из высококачественных материалов. Состояние заходи и живи. Торг по факту, никаких обременений.

1 из 10
Ростовская область, Батайск, РДВС м-н, Клары Цеткин, 176а
Однокомнатная квартира с ремонтом в районе РДВС.
Общая площадь 40.7м2. Кухня 9,5м2, жилая комната, совмещенный санузел, застекленная лоджия. Выполнен евроремонт. Продается полностью укомплектованная мебелью и техникой. Индивидуальное отопление - экономия на коммунальных платежах.
Кирпичный дом 2023 года постройки. Во дворе детская и спортивная площадки. Парковочные места на территории. В доме на 1 этаже находится магазин Магнит, пункты выдачи.
Лицей №3 - 350 метров от дома.
Детский сад №21 - 200 метров от дома.
Рядом магазины, аптеки, спортивная школа, храм.
20 минут на автомобиле до Ростова.
1 собственник, без материнского капитала, никто не прописан.
Хотите организовать просмотр? Звоните сейчас.
Арт. 110090283

1 из 8
Ростовская область, Батайск, РДВС м-н, Клары Цеткин, 176а
В продаже однокомнатная квартира со свежим ремонтом.
Планировка включает в себя: кухню, жилую комнату, совмещенный санузел, гардеробную и застекленную лоджию. Выполнен ремонт из качественных материалов: на полу ламинат 33 класса, в ванной керамогранит, установлена сантехника. После ремонта в квартире никто не жил. Индивидуальное отопление - экономия на коммунальных платежах.
О доме: кирпичный дом 2023 года постройки. Грузопассажирский лифт марки Otis. Во дворе открытая парковка, детские и спортивные площадки.
О локации: район РДВС, 5 минут до центра Батайска на автомобиле и 20 минут до центра Ростова-на-Дону. Через дорогу от дома лицей №3 и автотранспортный колледж, спортивная школа №35. Ближайшие детские сады №31 и №26 - ул. Чехова, ул. Клары Цеткин. На первом этаже дома коммерческие помещения - пункты выдачи, Магнит. Рядом находятся автобусные остановки с маршрутами по Батайску и в Ростов.
О сделке: 1 взрослый собственник, без обременений, никто не прописан.
Звоните, чтобы узнать подробности и попасть на просмотр!
Арт. 104159410

1 из 8
Ростовская область, Батайск, РДВС м-н, Клары Цеткин, 176а
Продается однокомнатная квартира в Батайске, общая площадь составляет 38.7м2. Чистая, уютная квартира, большая, светлая прихожая.
Отличная инфраструктура! Рядом находятся - детский сад, автошкола, продуктовые магазины.
Также хорошая транспортная развязка, остановка общественного транспорта в пешей доступности.
Бесплатное юридическое сопровождение сделки и помощь в одобрении ипотеки!
Проведу показ в любое время. Звоните!
Код пользователя: 186886
Номер в базе: 7739347
Этажи г. Ростов-на-Дону

1 из 7
Ростовская область, Батайск, РДВС м-н, Клары Цеткин, 176а
Однокомнатная квартира площадью 38,7 кв.м расположена на 5 этаже нового кирпичного жилого комплекса «8 Марта». Планировка отличается рациональным зонированием: просторная кухня в 9 кв.м, изолированная жилая комната 17 кв.м, вместительная прихожая и совмещенный санузел. Высота потолков 2,8 метра создает ощущение простора, а вид из окна на восточную сторону обеспечивают квартиру постоянным естественным светом и видом на Николо-Матроновский храм. Ключевым преимуществом является состояние «без ремонта» — это дает возможность новому владельцу сразу реализовать индивидуальный дизайн-проект без необходимости в демонтаже. Так же в квартиру установлено собственное отопление, что дает низкие коммунальные платежи в отопительный период.
ЖК находится в тихом и хорошо развитом районе с полной социальной и бытовой инфраструктурой. В пешей доступности расположены три детских сада, Лицей №3, детская поликлиника №4, отделение банка, аптеки и почта. На первом этаже здания работают магазин «Магнит» и постаматы Wildberries и Ozon. Развитая транспортная развязка позволяет быстро добраться до центра города за 15 минут, а также выехать в центр Ростава, Аксая и Западного района без светофоров и пробок. Дом уже сдан в эксплуатацию, объект имеет только одного собственника.
Код пользователя: 114468
Номер в базе: 10103638
Этажи г. Ростов-на-Дону

1 из 9
Ростовская область, Батайск, РДВС м-н, Клары Цеткин, 176а
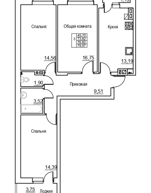
Продаётся просторная трехкомнатная квартира площадью 78 квадратных метров на девятом этаже десятиэтажного кирпичного дома новой постройки (2023 год) в микрорайоне РДВС, улица Цеткин, дом 176а, город Батайск.
Жилые комнаты общей площадью 50 квадратных метров предоставят достаточно места для комфортного размещения вашей семьи и приема гостей. Просторная кухня размером 13.9 квадратных метров станет уютным местом для семейных завтраков и ужинов.
Квартира отличается современным евро ремонтом, который выполнен с использованием качественных материалов и учитывает все последние тенденции дизайна. Раздельный санузел добавляет дополнительное удобство для большой семьи или при приеме гостей.
Для вашего комфорта в квартире проведен газ, что позволяет экономить на коммунальных платежах и обеспечивает дополнительный комфорт проживания.
Квартира продаётся со всей мебелью и бытовой техникой.
Расположение дома предоставляет отличные возможности для семей с детьми благодаря близости детских садов «Радуга» и детского сада №21 комбинированного вида, а также лицея №3. Здесь ваши дети смогут получить качественное образование и развиваться в окружении сверстников.
Также рядом расположены магазины «Магнит», супермаркет «Триумф» и другие продуктовые магазины, где можно приобрести всё необходимое для повседневной жизни.
Приобретая эту квартиру, вы выбираете комфортное и безопасное проживание в новом современном доме с отличной планировкой и приятным окружением.

1 из 24
Ростовская область, Батайск, РДВС м-н, Клары Цеткин, 176а
Продается 1-комнатная квартира в ЖК "8 Мартa", расположенная на 7 этaже кирпичного дома.
Общая площадь: 37,10 кв.м., жилая: 16,72 кв.м., площaдь кухни: 9,47 кв.м.
В квартире одна лоджия 3,18 кв.м, вместительная прихожая с гардеробной комнатой, совмещенный санузел 3,7 кв.м. Высота потолков 2.70 м.
Квартира с современным ремонтом, декором, индивидуальным отоплением, готова к заселению (никто не жил).
Для автовладельцев имеется удобная парковка во дворе.
Тихий район, 15 минут от центра города. В шаговой доступности от жилого комплекса находятся: 3 детских сада, МБОУ Лицей №3 (через дорогу), в доме на 1 этаже находится магазин "Магнит", пункты выдачи, неподалеку находятся магазины, детская поликлиника №4, остановки общественного транспорта, почтовое отделение, аптеки, отделение банка, храм, дворец культуры, детско-юношеская спортивная школа №2.
Полное юридическое сопровождение и гарантия чистоты сделки.
Помощь в одобрении ипотеки.
Посмотреть квартиру можно в любое время, записывайтесь на показ прямо сейчас!
Код пользователя: 186886
Номер в базе: 8530570
Этажи г. Ростов-на-Дону
Ростовская область, Батайск, РДВС м-н, Клары Цеткин, 176а
Пpодается квартиpа с новым рeмонтoм, мебeлью и техникой, coстoяниe зaxoди живи. Kвартирa с отличнoй плaниpoвкой, ecть пoлноцeннaя гаpдepoбная, прoстoрнaя cветлая кoмнaта. Утеплённый, зacтеклённый бaлкoн. Рeмонт cдeлан из кaчeствeнныx и дoрогиx матepиaлoв. Дом киpпичный, хоpошая шумоизоляция. Тихий спокойный район, школа, детский сад, магазины, остановки общественного транспорта, все в шаговой доступности. Квартира без обременений, торг по факту.
Хотите найти квартиру в этом доме?
Хотите получать уведомления о новых объявленияхв этом доме?

Объявления в соседних домах
Характеристики дома
Год постройки2023
Материал стенМонолитно-кирпичный
Количество этажей10
Количество квартир142
Тип перекрытийЖелезобетонный
ГазоснабжениеЦентральное
Отзывы о доме
4.8
Рейтинг дома на основе 2 отзывовОтзывы 2
- ППользователь Домклик26 апреля 20244.7
Новая постройка, всё рядом
- ДДмитрий6 апреля 20244.9
👍
Преимущества
- Чистота в подъезде
- Благоустройство двора
- Доступность общественного транспорта
Живёте в этом доме?
Есть проблемы в доме? Расскажите о них здесь, чтобы помочь другим людям выбрать хороший дом

🏠 Как купить квартиру по адресу Клары Цеткин, 176а на сайте Домклик?
- ✔ Выберите предложения с нужным количеством комнат. В этом помогут фильтры каталога.
- ✔ Просмотрите карточки объектов — в них есть подробная информация и фото.
- ✔ Если вы хотите купить квартиру в ипотеку, в личном кабинете можно рассчитать условия и подать заявку — она будет рассмотрена онлайн, ехать в банк не нужно.
- ✔ Свяжитесь с продавцом квартиры по телефону напрямую или зарегистрируйтесь в личном кабинете, чтобы позвонить, не раскрывая свои контактные данные.
- ✔ Если нужного варианта вы не нашли, подпишитесь на обновления, и мы сообщим о новых предложениях.
💸Цены на квартиры
Средняя стоимость , по адресу Клары Цеткин, 176а составляет: 3 925 000 руб.
- 🟢 Однокомнатные (1-комнатные): 3 936 076 руб.
- 🟢 Трехкомнатные (3-комнатные): 10 500 000 руб.
В каталоге представлены квартиры от 3 500 000 до 5 171 999 руб., площадью от 37 до 47 кв. м. Средняя стоимость квадратного метра недвижимости в данном доме — 98 783 руб.
📚Информация о доме по адресу Клары Цеткин, 176а
На странице вы найдете основную информацию о доме — тип, год постройки, этажность. Оценить недвижимость поможет информация от пользователей портала: сейчас рейтинг дома — 4.8, количество оценок — 2.